無油螺桿真空泵的的具體應用
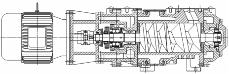
2023/09/20螺桿真空泵工作原理如圖1所示。成對的自嚙合轉子與殼體形成多個封閉空間,在轉子對旋轉方向相反運動時,驅動封閉空間運動,形成抽氣、壓縮等輸運氣體過程。

圖1 螺桿泵核心結構和工作原理
可以看出,由于轉子對、殼體之間存在間隙,螺桿泵的工作壓力、體積流率是幾何抽速與氣體通過間隙回流平衡的結果。所以其入口真空取決于節距數量、間隙控制和轉子線速度。
螺桿泵實際為多級串聯工作的轉子泵,或單頭齒輪泵的串聯,可以認為是多級直排大氣羅茨泵或者爪形泵的串聯組合,能夠實現入口高真空、排口直接排入大氣,特別是變螺距真空泵符合多級真空泵壓縮原理,可以實現大抽速、高壓縮比。螺桿泵工作時,轉子對、殼體、端面沒有機械接觸,不需要潤滑,所以可以“干式”工作。在輸運氣體過程中不會造成真空泵體內部、抽氣管線及系統、排氣管線及系統污染,但是需要對運動的齒輪、軸承、密封件等潤滑、冷卻。油封機械泵包括旋片泵、滑閥泵等,采用油來密封、潤滑轉子與殼體,采用一級或者二級就可以實現高真空,但是“油”是硬傷。
隨著現代工業及科技工程對真空系統清潔度要求越來越高,無油的螺桿泵獲得越來越多的關注和應用。我國從21世紀初開始研究螺桿真空泵,從引進、消化吸收國外技術,通過逆向工程到創新發展,已經成為無油螺桿真空泵最大的市場,也是產品供應的重要力量。
目前我國生產的螺桿真空泵大多應用于基礎工業的精細化工、石油石化等產業。半導體產業應用的螺桿真空泵,國外產品占有大部分市場份額,我國螺桿真空泵進入該市場的潛力巨大。
2.無油螺桿真空泵應用狀況
傳統設計的螺桿真空泵(以國外進口配置為例),以吸入口真空度、體積流率、無油為重要考核指標。
從理念看,更注重半導體應用環境的清潔真空實現;從配置看,強調泵腔無油和管路的清洗保護等,適合半導體等產業需求場景。
一般螺桿真空泵的宏觀結構如圖2所示,其特點如下:
1、吸氣口在整個泵的非驅動端;軸承室采用脂潤滑;吸氣口位置沒有冷卻結構,常壓排氣。
2、排氣位置設置在驅動端,傳動系統包括齒輪、軸承等,采用油進行潤滑、冷卻等。
3、在吸入口設置沖洗系統,可以通過沖入清潔氣體對泵腔及部件清潔沖洗,特別是對系統產生的粉塵、微量液體具有很好的效果;在排氣端的動密封結構中也加入了充氣結構,氣體形成的氣障可以防止被抽氣體與潤滑系統接觸交互。

圖2 螺桿泵宏觀結構示意圖
螺桿泵的這種設計理念基于“無油”、“干式”,工作過程中保證齒輪箱中的油氣不會進入被抽系統,同時又完全保障真空泵本身潤滑、冷卻產生的蒸發物不會進入齒輪箱內,適合半導體、航天模擬、高能物理等產業和場景。
這些場景中氣體基本為干燥氣體,氣體成分恒定,與傳統螺桿真空泵的結構特點是和諧的。
但是,螺桿泵在石油化工、食品、海洋工程等基礎工業中應用場景更復雜,使用參數、性質更具離散性。主要體現在以下方面:
1、這些應用場景中氣體成分復雜,包含烷、烴、苯、醛等低鏈分子,基本是油、氣混合成分,而且從過程看大部分是處于飽和狀態的氣體,壓縮過程中容易,也必然產生凝液化、結焦。這些液體需要收集,飽和氣體需要處理才能排放,因此需要一定的壓力才能實現尾氣的輸送、回收。用于化學氣體處理的螺桿真空泵排氣壓力高、溫度高,更易發生損毀。
2、在排氣端正壓條件下,氣體會滲入齒輪箱。低鏈分子油氣與潤滑油混溶,導致潤滑油乳化變質,引起故障。
3、入口壓力具有離散性,壓力值從數十帕斯卡到數萬帕斯卡,壓縮腔內物理參量實際數值不斷變動,很難用一種固定配置模式實現最優運行。
基于以上應用場景的特殊性,如果直接采用普通設計的螺桿式真空泵,必然會導致轉子之間、轉子與泵體之間出現高溫引起的咬合,泵腔內部運動部件結焦失去安全間隙,潤滑油乳化變質造成齒輪與軸承損毀,這是工程中最常出現的問題。
浙江盛源是一家專業從事研究制造無油真空泵系列、新能源電動真空泵、空氣壓縮機設備、醫療器材、永磁伺服電機、工業投資等多元化經營的大型企業,是國家高新技術企業,浙江省級技術研究開發中心。

